Farm, Home, Shop on 184.97 Acres

891 Cross Rd, Klamath Falls, OR

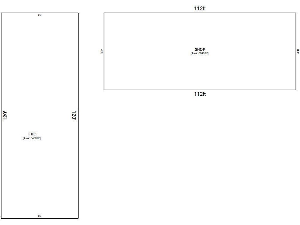
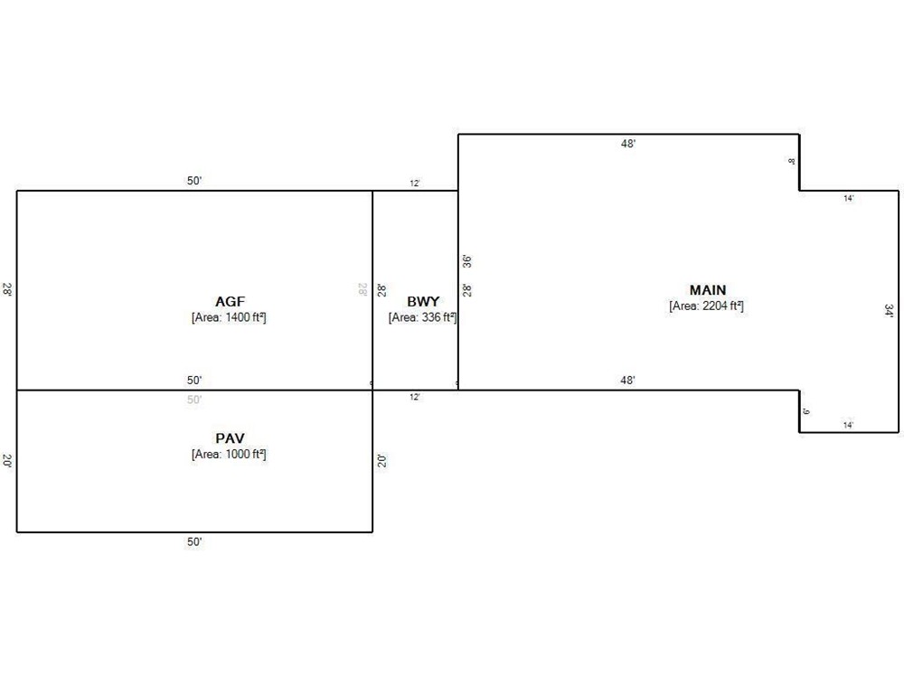
Farm - Home - Shop 184 acre farm located minutes from Klamath Falls. Built in 1984, this home is 2200sf and has 3 bedrooms & 3 ½ baths. Features include; large kitchen, split floor plan, counter seating, rec room/flex space, mud room w/shower & toilet, F/A heat & AC, Monitor heater, woodstove, (2) 1-car garages, heated, w/workshop. Outside is a partially covered front deck, fenced area w/raised container beds and nice landscaping. 23x45 covered parking area in back and a great hobby shed w/power, hot/cold water & finished interior. The huge 5000 sf shop has a cement floor, power & water. Includes office space, parts room, plumbed bathroom, loft storage, airline throughout, 4 roll-up doors & more. 182 pivot irrigated acres primarily in the KBID & Midland Irrigation Districts. 3 Parcels. Owners wish to sell all together, however there may be partition opportunities for the new buyer. Not enough space here to cover it all. Ask your agent for more information and an appt. 184.97 Acres, MLS# 220204454  $1,100,000

More Pictures

For more information contact Carla

Cell (541) 891-8556

carla.yancey@fnrhomes.com

Office (541) 884-1717

Back to Ranches

---------

Back to Residential

 

The information contained herein has been obtained through sources deemed reliable by Oregon Ranch Land, but cannot be guaranteed for its accuracy. We recommend to the buyer that any information, which is of special interest, should be obtained through independent verification. ALL MEASUREMENTS ARE APPROXIMATE

©.Copyright 2002-2025 Oregon Ranch Land

 

Pictures

Back to Listing